Строим уже 10 лет - каркасные энергоэффективные дома в Казани и Татарстане за 2,2 - 6 млн рублей

✅Стоимость дома 100 м² = стоимости однокомнатной квартиры.

✅Стоимость отопления дома 100 м² = 15.000 5.000 руб/месяц. За 10 лет вы сэкономите более 1.000.000 рублей.
Строим современные каркасные дома
В КАЗАНИ И В РАДИУСЕ 250 КМ
Давайте знакомиться!
Меня зовут Максим Медведев, я генеральный директор компании "Северный Дом".

С 2016 года мы строим современные энергоэффективные каркасные дома, используя технологии, которые много лет применяют крупнейшие строительные компании Финляндии и Скандинавии.

В работе мы используем комплексный подход – cвой проектный отдел, качественные материалы, внутренний технадзор.

Поэтапное строительство «под ключ» от фундамента до инженерных систем и внутренней отделки. Используем только проверенные технологии, много лет применяемые в Северной Европе и адаптированные к российским условиям.

Гарантия до 5 лет.

Нас выбирают за комплексный, сбалансированный, профессиональный подход к строительству. За честный подход к работе.
double image fisrt partdouble image second partПодробнее

Рациональные планировки, подсобные помещения, отопление, вентиляция.

От фундамента до инженерных систем и внутренней отделки. Вам не придется искать разных исполнителей.

Невысокие затраты на отопление дома даже электричеством.

Уже сегодня мы строим с расчетом на перспективу. Ваш дом не потребует переделки или ремонта в ближайшем будущем.

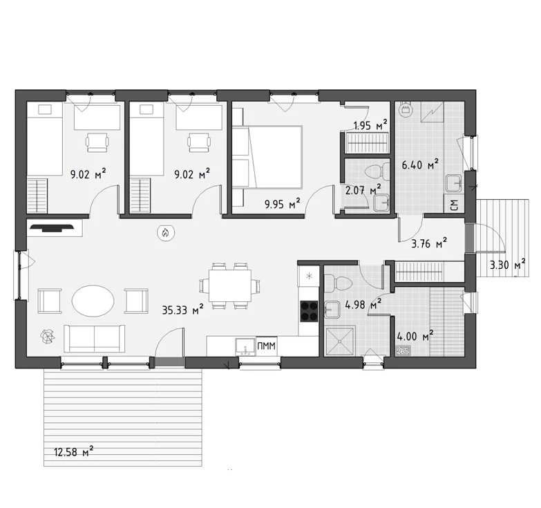
Типовые проекты
Каркасная технология, минимальный срок строительства, оптимальные планировки, конфигуратор стоимости. Выберите то - что вам нужно.
Перейти в каталог
Дома наших заказчиков
С 2016 года более 210 семей доверили нам строительство своих домов.
Оставить заявку
Индивидуальные проекты
Если у вас уже есть проект, который вам нравится, мы можем адаптиривовать его под нашу технологию и построить дом с учётом ваших требований.
Обсудить проект

Стоимость строительства

домов по типовым и индивидуальным проектам в базовой комплектации
Полезная (отапливаемая) площадь
На этапе "тёплый контур" с фундаментом винтовые сваи
40-60 м²
от 2 200 000 ₽
60-80 м²
от 2 700 000 ₽
80-100 м²
от 3 200 000 ₽
100-120 м²
от 4 000 000 ₽
Как узнать точную стоимость?
Мы поэтапно движемся к пониманию стоимости,
чтобы не вводить вас в заблуждение

Нравится ли вам, когда за изначальной привлекательной ценой скрывается много «допов», «опций» и прочих неучтенных расходов? Нам тоже не нравится. Поэтому понимание реальной стоимости строительства дома — это постепенный процесс из нескольких этапов.
  • 1
    Рамочная оценка
    На этом этапе мы уточняем границы стоимости по конкретному дому, на который вы отправляете запрос и поясняем, что войдет в стоимость.
  • 2
    Предпроектный расчет
    Если рамочная оценка укладывается в ваш бюджет, мы рассчитываем предварительную предпроектную смету. Для простых домов ее погрешность составляет порядка 7% от проектной.
  • 3
    Проектная смета строительства
    Проектная смета составляется после разработки проекта марки АР — с учетом всех ваших требований к будущему дому. Эта смета является основой договора на строительство.
Задайте их нам прямо сейчас
Остались вопросы по стоимости?
ПОЧЕМУ ВЫБИРАЮТ "СЕВЕРНЫЙ ДОМ"
4 ПРИЧИНЫ ДЛЯ ОБРАЩЕНИЯ К НАМ
  • Вам важна не только цена

    Вам важна цена, но она не является единственным критерием выбора. Важнее то, как будет построен ваш дом

  • Вам важна квалификация

    Вы ищите подрядчика с высоким уровнем экспертности в вопросах строительства дома

  • Вам важен подход к делу

    "Нам нравится ваш подход к делу, поэтому мы обратились к вам", - говорят наши заказчики

  • Вы устали от рекламы

    Вы устали от предложений "дома за миллион", когда цена растёт в 2-3 раза из-за скрытых платежей

Отзывы счастливых клиентов, которым наша компания уже помогла обрести дом
image alt
Частые вопросы и ответы
Подборка самых частых вопросов и ответов на них
Контакты
+7 993 420-26-76
г. Казань, ул. Мазита Гафури, д. 50 к. 2 оф. 109
Написать в WhatsApp
Написать в Telegram
Оставьте заявку
Напишите нам - остальное мы сделаем сами.
Что вы хотите?

Оставляя заявку, вы соглашаетесь на обработку персональных данных.

Заявка оформлена
Наш менеджер позвонит вам в ближайшее время уточнить детали. Хорошего дня!
Политика конфиденциальности интернет-сайта
г. Казань "1" января 2021 г.

Настоящая Политика конфиденциальности персональных данных (далее Политика конфиденциальности) действует в отношении всей информации, размещенной на сайте в сети Интернет по адресу: https://severnydomik.ru (далее - Сайт), которую может получить Администрация Сайта и/или третьи лица во время использования Пользователем Сайта, его сервисов, программ и продуктов.

Использование сервисов Сайта означает безоговорочное согласие Пользователя с настоящей Политикой и указанными в ней условиями обработки его персональной информации; в случае несогласия с этими условиями Пользователь должен воздержаться от использования сервисов.

Заполнив любую из форм и используя Сайт, Пользователь тем самым выражает согласие с условиями изложенной ниже Политики конфиденциальности.

1. ОБЩИЕ ПОЛОЖЕНИЯ

1.1. В рамках настоящей Политики под персональной информацией Пользователя понимаются:

1.1.1. Персональная информация, которую Пользователь предоставляет о себе самостоятельно при регистрации (создании учетной записи) или в процессе использования Сервисов, включая персональные данные Пользователя.

1.1.2. Данные, которые автоматически передаются сервисам Сайта в процессе их использования с помощью установленного на устройстве Пользователя программного обеспечения, в том числе IP-адрес, данные файлов cookie, информация о браузере Пользователя (или иной программе, с помощью которой осуществляется доступ к сервисам), технические характеристики оборудования и программного обеспечения, используемых Пользователем, дата и время доступа к сервисам, адреса запрашиваемых страниц и иная подобная информация.

1.1.3. Иная информация, которую может получить Администрация Сайта и/или третьи лица во время использования Пользователем Сайта, его сервисов, программ и продуктов.

1.2. Настоящая Политика конфиденциальности применяется только к Сайту https://severnydomik.ru. Сайт https://severnydomik.ru не контролирует и не несет ответственности за сайты третьих лиц, на которые Пользователь может перейти по ссылкам, доступным на Сайте https://severnydomik.ru.

2
. ЦЕЛИ ОБРАБОТКИ ПЕРСОНАЛЬНОЙ ИНФОРМАЦИИ ПОЛЬЗОВАТЕЛЕЙ

2.1. Сайт собирает и хранит только ту персональную информацию, которая необходима для предоставления сервисов или исполнения соглашений и договоров с Пользователем, за исключением случаев, когда законодательством предусмотрено обязательное хранение персональной информации в течение определенного законом срока.

2.2. Персональную информацию Пользователя Сайт обрабатывает в следующих целях:

2.2.1. Идентификации Пользователя, зарегистрированного на Сайте;

2.2.2. Предоставления Пользователю доступа к персонализированным ресурсам Сайта.

2.2.3. Установления с Пользователем обратной связи, включая направление уведомлений, запросов, касающихся использования Сайта, оказания услуг, обработку запросов и заявок от Пользователя.

2.2.4. Определения места нахождения Пользователя для обеспечения актуальности размещенной на Сайте информации.

2.2.5. Подтверждения достоверности и полноты персональных данных, предоставленных Пользователем.

2.2.6. Создания учетной записи Пользователя.

2.2.7. Предоставления Пользователю эффективной клиентской и технической поддержки при возникновении проблем, связанных с использованием Сайта.

2.2.8. Осуществления рекламной деятельности с согласия Пользователя

3. УСЛОВИЯ ОБРАБОТКИ ПЕРСОНАЛЬНОЙ ИНФОРМАЦИИ ПОЛЬЗОВАТЕЛЕЙ И ЕЕ ПЕРЕДАЧИ ТРЕТЬИМ ЛИЦАМ

3.1. В отношении персональной информации Пользователя сохраняется ее конфиденциальность, кроме случаев добровольного предоставления Пользователем информации о себе для общего доступа неограниченному кругу лиц. При использовании отдельных сервисов Пользователь соглашается с тем, что определенная часть его персональной информации становится общедоступной.

3.2. Сайт вправе передать персональную информацию Пользователя третьим лицам в следующих случаях:

3.3.1. Пользователь выразил согласие на такие действия.

3.3.2. Передача необходима для использования Пользователем определенного сервиса либо для исполнения определенного соглашения или договора с Пользователем.

3.3.3. Передача предусмотрена российским или иным применимым законодательством в рамках установленной законодательством процедуры.

3.3.4. В случае продажи Сайта к приобретателю переходят все обязательства по соблюдению условий настоящей Политики применительно к полученной им персональной информации.

3.4. Обработка персональных данных Пользователя осуществляется без ограничения срока любым законным способом, в том числе в информационных системах персональных данных с использованием средств автоматизации или без использования таких средств. Обработка персональных данных Пользователей осуществляется в соответствии с Федеральным законом от 27.07.2006 № 152-ФЗ «О персональных данных».

3.5. При утрате или разглашении персональных данных Администрация Сайта информирует Пользователя об утрате или разглашении персональных данных.

3.6. Администрация Сайта принимает необходимые организационные и технические меры для защиты персональной информации Пользователя от неправомерного или случайного доступа, уничтожения, изменения, блокирования, распространения, а также от иных неправомерных действий третьих лиц. копирования,

3.7. Администрация Сайта совместно с Пользователем принимает все необходимые меры по предотвращению убытков или иных отрицательных последствий, вызванных утратой или разглашением персональных данных Пользователя.

4. ОБЯЗАТЕЛЬСТВА СТОРОН

4.1. Пользователь обязан:

4.1.1. Предоставить информацию о персональных данных, необходимую для пользования Сайтом.

4.1.2. Обновлять, дополнять предоставленную информацию о персональных данных в случае изменения данной информации.

4.1.3. Не использовать Сайт в случае своего несогласия с настоящей Политикой конфиденциальности.

4.2. Администрация Сайта обязана:

4.2.1. Использовать полученную информацию исключительно для целей, указанных в настоящей Политике конфиденциальности.

4.2.2. Обеспечить хранение конфиденциальной информации в тайне, не разглашать без предварительного письменного разрешения Пользователя, а также не осуществлять продажу, обмен, опубликование либо разглашение иными возможными способами переданных персональных данных Пользователя, за исключением предусмотренных настоящей Политикой конфиденциальности.

4.2.3. Принимать меры предосторожности для защиты конфиденциальности персональных данных Пользователя согласно порядку, обычно используемому для защиты такого рода информации в существующем деловом обороте.

4.2.4. Осуществить блокирование персональных данных, относящихся к соответствующему Пользователю, с момента обращения или запроса Пользователя или его законного представителя либо уполномоченного органа по защите прав субъектов персональных данных на период проверки в случае выявления недостоверных персональных данных или неправомерных действий.

5. ОТВЕТСТВЕННОСТЬ СТОРОН

5.1. Администрация Сайта, не исполнившая свои обязательства, несет ответственность за убытки, понесенные Пользователем в связи с неправомерным использованием персональных данных, в соответствии с законодательством Российской Федерации.

5.2. В случае утраты или разглашения конфиденциальной информации Администрация Сайта не несет ответственности, если данная конфиденциальная информация:

5.2.1. Стала публичным достоянием до ее утраты или разглашения.

5.2.2. Была получена от третьей стороны до момента ее получения Администрацией Сайта.

5.2.3. Была разглашена с согласия Пользователя.

6. РАЗРЕШЕНИЕ СПОРОВ

6.1. До обращения в суд с иском по спорам, возникающим из отношений между Пользователем Сайта и Администрацией Сайта, обязательным является предъявление претензии (письменного предложения о добровольном урегулировании спора).

6.2. Получатель претензии в течение 10 календарных дней со дня получения претензии письменно уведомляет заявителя претензии о результатах рассмотрения претензии.

6.3. При недостижении соглашения спор будет передан на рассмотрение в суд в соответствии с действующим законодательством Российской Федерации.

6.4. настоящей Политике конфиденциальности и отношениям между Пользователем и Администрацией Сайта применяется действующее законодательство Российской Федерации.

7. ДОПОЛНИТЕЛЬНЫЕ УСЛОВИЯ

7.1. Администрация Сайта вправе вносить изменения в настоящую Политику конфиденциальности без согласия Пользователя.

7.2. Новая Политика конфиденциальности вступает в силу с момента ее размещения на Сайте, если иное не предусмотрено новой редакцией Политики конфиденциальности.